São Paulo | Loja | COMERCIAL
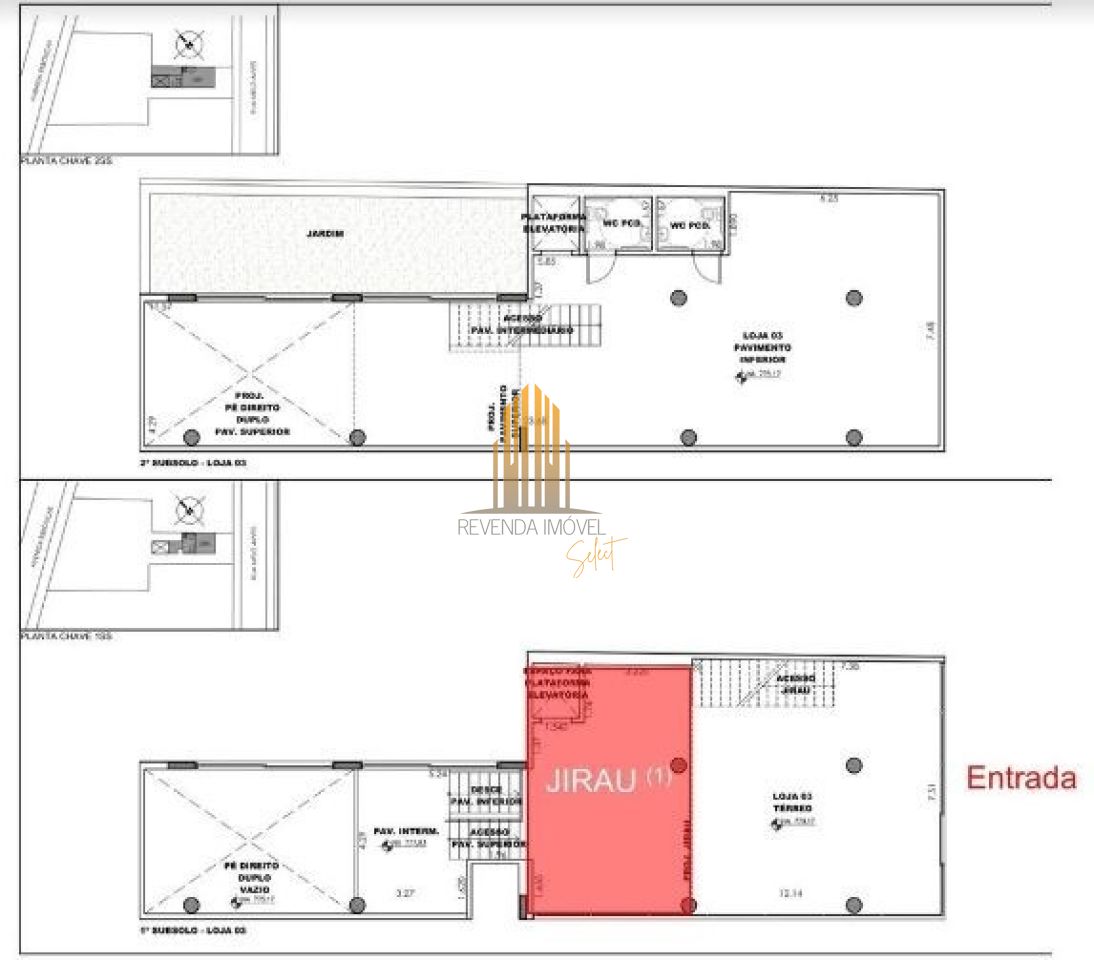
Condomínio VN Melo Alves em Cerqueira César, Loja Comercial de 306,61m² com 3 banheiros, sem vaga.
Loja Comercial de 306,61m² com 3 banheiros, sem vaga no Condomínio Condomínio VN Melo Alves.
Condominio conta com: Piscina, Churrasqueira, Espaço Gourmet, Academia, Brinquedoteca, Quadra, Playground, Salão de Jogos, Salão de Festas, Área Verde.
O bairro está próximo de inúmeras atrações turísticas, lojas de grife, hospitais renomados, shoppings, gastronomia diversificada, estações de metrô, linhas de ônibus, ciclovias e uma ampla rede de serviços.
DATA DE ENTREGA: PRONTO 30/03/2021
FOTOS DE DECORADO/PERSPECTIVA
DECORADO UNICO
REVENDA IMÓVEL SELECT