Descrição do Imóvel

Condomínio On Melo Alves no Jardins - SP, Loja Comercial de 376,48m² com 2 banheiros, 1 vagas.

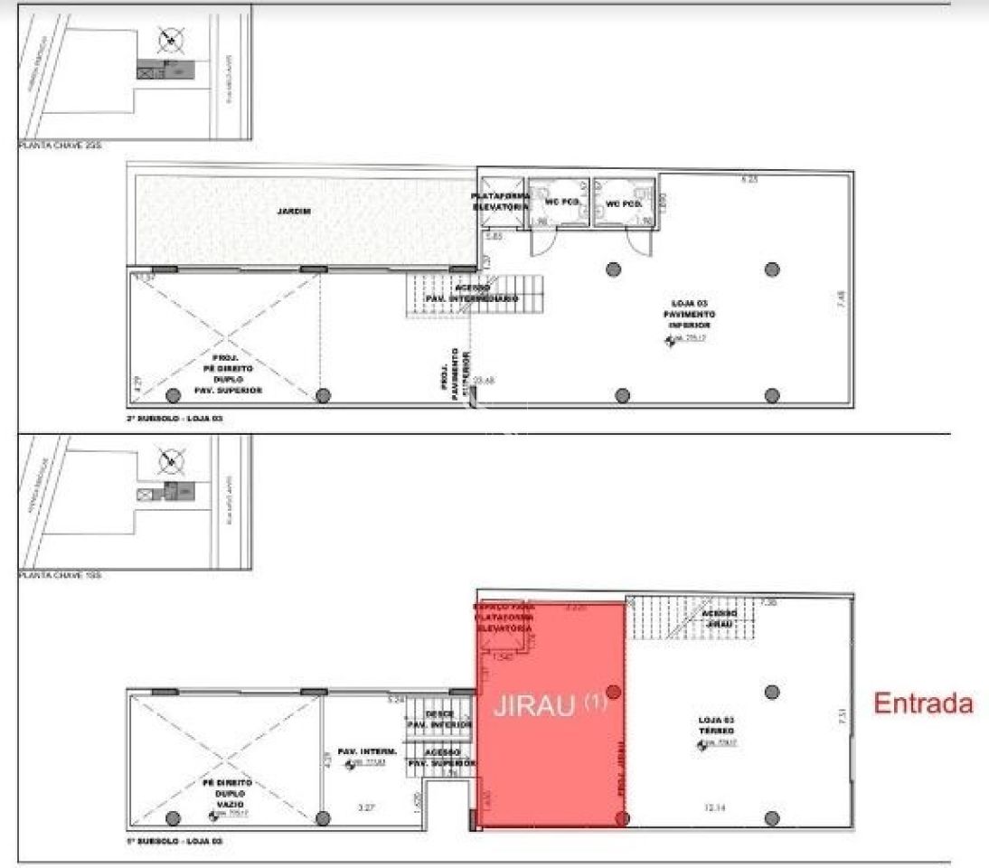
Área de 376,48m², com 1 andar, fachada de 7,9 metros.
Piso Entregue em cimento liso desempenado, Concreto aparente e/ou pintura látex, Suvinil, Sherwin Williams e/ou pintura texturizada imitando concreto ou desempenho equivalente, Teto Laje de concreto aparente, 2 banheiros entregues com piso em porcelanato, paredes com pintura látex acrílico na cor branco, teto com pintura látex acrílico na cor branco e louças e metais Deca ou de desempenho equivalente, 2 vagas para utilitários de uso compartilhado entre as lojas, localizadas no 1º subsolo.

O metrô Oscar Freire se encontra a 250 metros do empreendimento (cerca de 4 minutos). Este também é uma das principais linhas de metrô de São Paulo, com cerca de 22.130 pessoas circulando diariamente.



A Revenda Imóvel Select é uma empresa que busca conciliar os reais interesses de seus clientes, de forma que consigam realizar seus sonhos e atinjam seus objetivos. Transparência, seriedade e ética, são esses os princípios seguidos pela nossa equipe.

Detalhes da Propriedade

  • Referência: BV10667
  • Disponível p/ Venda: Sim
  • Valor Venda: R$ 7.529.600,00
  • Disponível p/ Locação: Não
  • Tipo do Imóvel: Loja
  • Área Útil: 376m²
  • Área Total: 376m²
  • Salas:
  • Banheiros: 2
  • Vagas: 2
  • Suítes:
  • Dormitórios:
  • Cidade: São Paulo
  • Região: Jardins

Condições

  • 2 Vaga(s)
  • 3.764,80 Condomínio
  • 4.894,24 IPTU
  • 376m² Área Útil
  • 376m² Área Total

Características do Imóvel

Copa

Mapa