Descrição do Imóvel

Discrição:
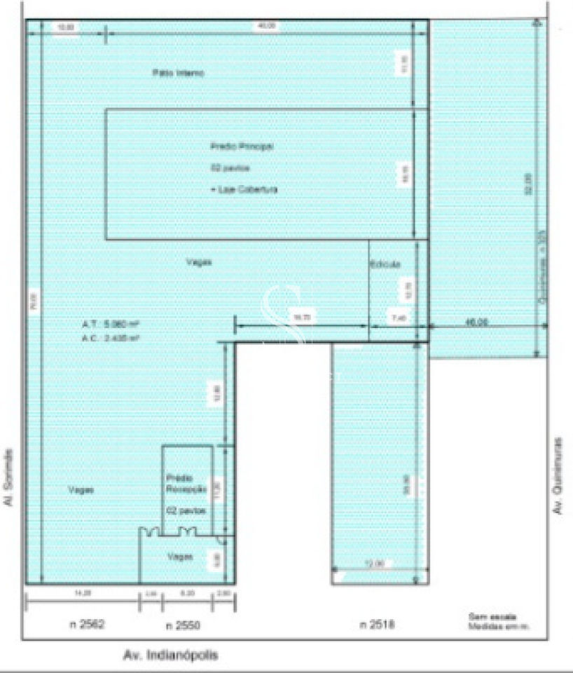
Terreno de esquina.
Estacionamento interno: 40 vagas.
Grande área de jardim + amplo pátio interno
Prédio Principal: 02 pavimentos. + Cobertura 14 salas grandes + 6 salas, banheiros / vestiários + cozinha Edícula: 02 pavimentos.

Localização:

Av. Indianópolis, 2518/52/62 ? Indianópolis. Em frente ao Serasa
Fácil acesso: Próximo à Av. Dos Bandeirantes, Av. Jabaquara e Av. 23 de Maio. Próximo à estação São Judas do Metrô e com diversas linhas de ônibus na avenida;




A Revenda Imóvel Select é uma empresa que busca conciliar os reais interesses de seus clientes, de forma que consigam realizar seus sonhos e atinjam seus objetivos.
Transparência, seriedade e ética, são esses os princípios seguidos pela nossa equipe.

Detalhes da Propriedade

  • Referência: BV5501
  • Disponível p/ Venda: Sim
  • Valor Venda: R$ 34.700.000,01
  • Disponível p/ Locação: Não
  • Tipo do Imóvel: Prédio Comercial
  • Área Útil: 5.080m²
  • Área Total: 5.080m²
  • Salas:
  • Banheiros: 6
  • Vagas: 40
  • Suítes:
  • Dormitórios:
  • Cidade: São Paulo
  • Região: Indianópolis

Condições

  • 40 Vaga(s)
  • 1,00 Condomínio
  • 24.652,01 IPTU
  • 5.080m² Área Útil
  • 5.080m² Área Total

Características do Imóvel

Copa
Cozinha

Características do Condomínio

Garagem Independente
Portaria 12Hrs

Mapa